LÍV Fastogn og Jóan Petur Vang hava gjørt avtalu um íbúðarbygging við Bryggjuna í Runavík og koma íbúðirnar at liggja í miðdeplinum í nýggja miðstaðarøkinum í Runavík.
Talan er um 18 leiguíbúðir, sum eftir ætlan vera innflytingarklárar á sumri 2027.
Spurningar kunnu sendast til: livfastogn@livfastogn.fo

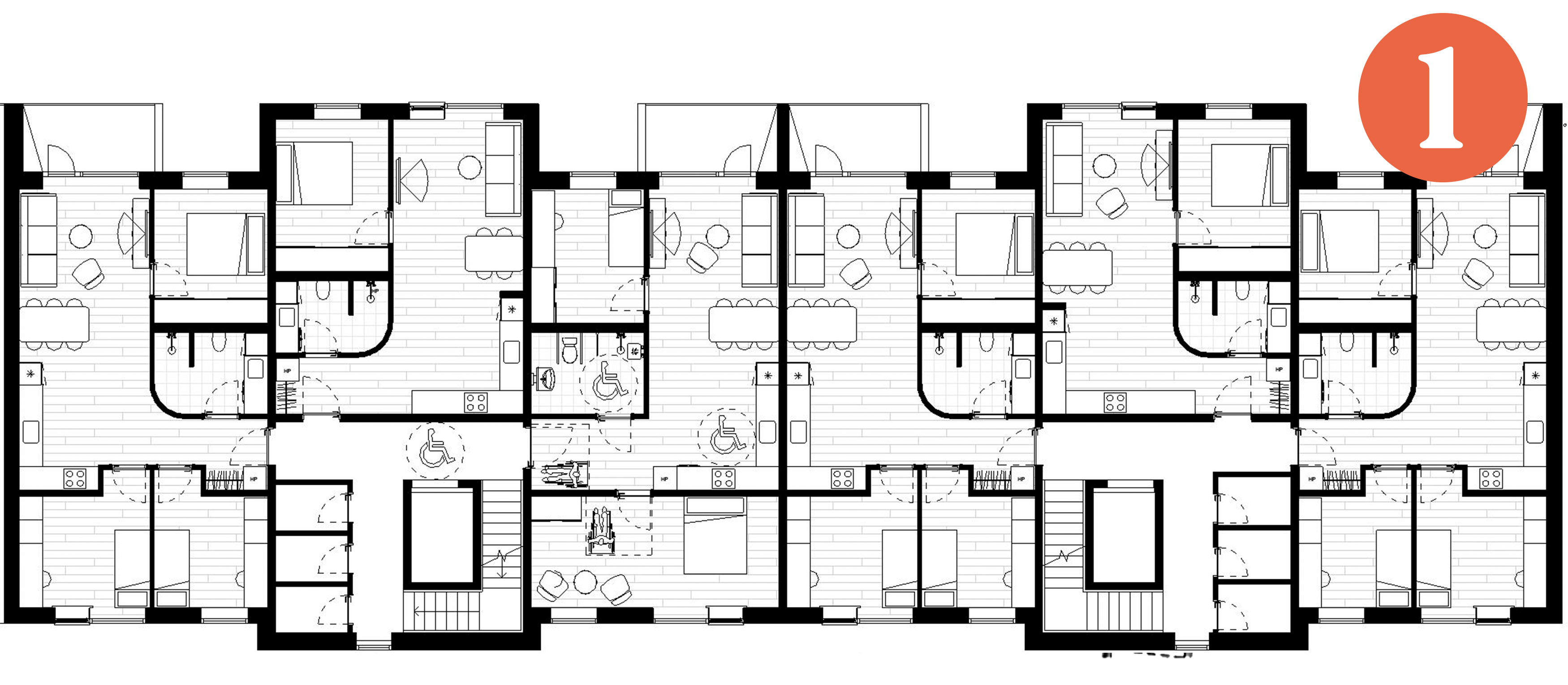
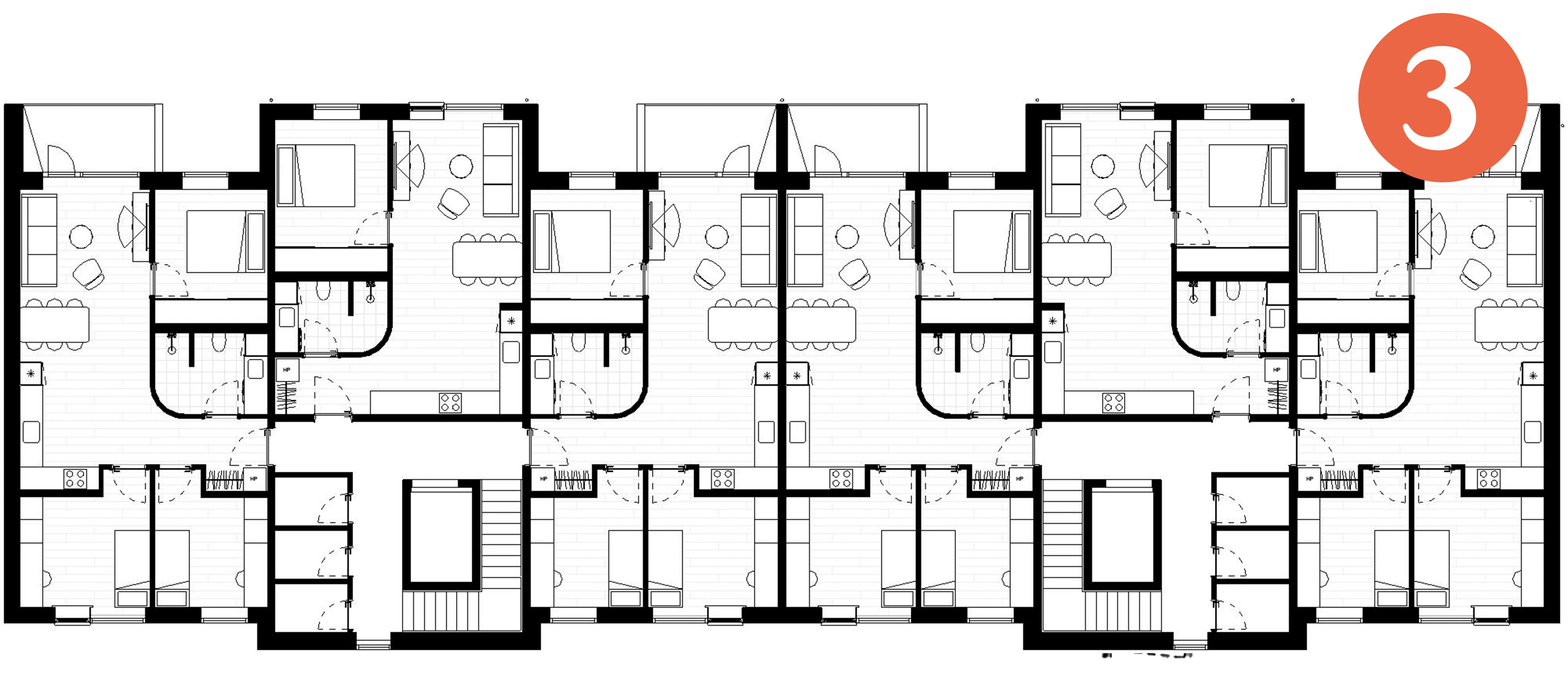
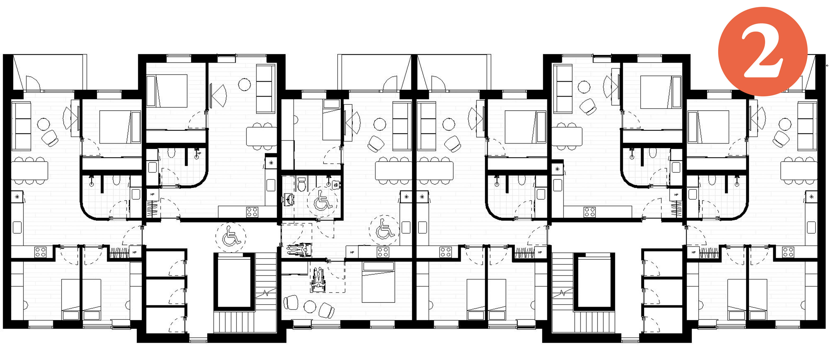
Talan er eina Lon, við tveimum høvuðsinngongdum.
Til hvørja uppgongd er atgongd til 9 íbúðir, ið hava millum 1-3 kømur og vera millum 77-100 m2.
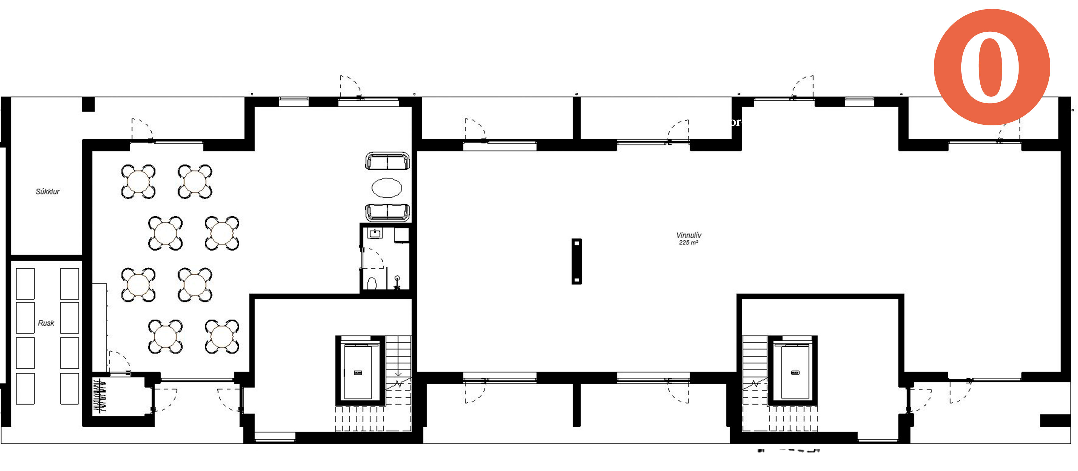
Allar íbúðirnar hava egið goymslurúm og harumframt er eitt felagshølið, við te-køki, vesi og goymslu, á í alt 148 m2.
Kontrast hevur teknað.
Íbúðirnar eru ymiskar.
Allar íbúðirnar hava egið goymslurúm og harumframt er eitt felagshøli við te-køki, vesi og goymslu, á í alt 148 m2.
Nærri fæst at vita um bíðilista til íbúðirnar á heysti í 2026.



Hamarin á Argjum
Tað ber til at skriva seg upp til bíðilistan í frymlinum.
Tú kanst velja at skrivað teg upp til eina ella fleiri íbúðir.